联系人:蒋经理
手机:13812222880
电话:0510-878711190
地址:宜兴市高塍镇沈家村
网址:www.jsxdh.cn
邮箱:web@jsxdh.cn
回转式固液分离机
概述与用途
CF-Ⅰ型回转式固液分离机(也称回转式格栅除污机),它是一种先进的水处理固液分离设备,主要用于城镇污水处理厂、住宅小区污水预处理、市政雨/污水泵站、自来水厂以及电厂冷却水等进水口处;也广泛用于纺织、印染、食品、水产、造纸、酿酒、屠宰、制革等行业的水处理工程,是水处理行业中理想的固液分离设备。

结构与工作原理
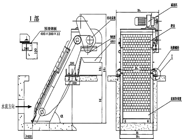
CF-Ⅰ型回转式固液分离机采用回转式,由一种特殊形状的犁形耙齿按一定的装配顺序和数量排列在横轴上,组成耙齿链,根据过水流量,装配成不同的间隙,安装在泵站或水处理系统的入口处,当驱动装置带动耙齿自下向上运动时,水中的杂物被耙齿捞起,液体则在栅隙中流过,设备转动到上部顶点后,耙齿链改变运动方向,由上向下运动,物料依靠自重从耙齿上自动脱落,当耙齿从反面转到设备底部时,又开始另一循环往复的连续运行,从而不断地从水中清捞杂物,达到固液分离的目的。

设备主要特点
1、驱动装置采用摆线针轮或斜齿轮式减速机直接驱动,噪声低、结构紧凑、运行平稳等特点;
2、机架为整体框架结构,刚性强、安装简便,日常维修工作量少;
3、耙齿规格两种,粗格栅耙齿节距t=150㎜,细格栅耙齿节距t=100㎜;
4、设备操作简便,可直接就地/远程控制设备的运行;
5、为防止意外过载,设有机械剪切销和过电流双重保护,使设备运行安全可靠;
6、当设备宽≥1500㎜时,为保证设备的整体强度,将采用并联机的形式。

型号规格表示

主要技术参数和安装外形尺寸

外形结构及安装基础图

订货须知
1、订货时,请提供渠宽、渠深、安装角度、耙齿间隙及出料高度等参数;
2、请注明设备材质;
3、若配套控制箱,请注明控制方式;
4、若客户有特殊要求,可在订货合同中事先注明。
